Property Details - Reference 15954

Tolpath
Coed Eva
Cwmbran
Torfaen
NP44 6UF
Cost summary

Overview

Advert Type:
Social Housing.
Landlord:
Bron Afon Community Housing.
Closing date:
04/11/2025.
Added:
30/10/2025.
Pets allowed
Garden
Min bedroom need 2
Max bedroom need 2
Preferred Band Silver
Icon Descriptions
Pets allowed
Garden
Min bedroom need 2
Max bedroom need 2
Preferred Band Silver
Front view

Main details

Area:
Coed Eva.
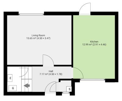
Bedrooms:
2.
Below is a map showing this property's location. Skip past the map

Cost

Rent:
£129.42.
Service charge:
£0.66.
Total cost :
£130.08 .
Payment Cycle :
Weekly (50 weeks) | Bob Wythnos (50 wythnos).

Facilities

Pets Permitted:
Yes.
Bathroom facilities:
Level Access Shower | Cawod â Mynediad Gwastad.
Garden type:
Own garden | Gardd eich hun.
Heating type:
Gas central heating | Gwres canolog nwy.
Parking facilities:
On street parking | Parcio Ar y Stryd.

Eligibility details

Preference given to:
Silver | Arian band.
Minimum age:
0.
Min Bed:
2.
Max Bed:
2.

Further information

Marketing information:
2 Bed House with Walk in Shower (NO BATH). Close to local amenities. 1 MONTHS FULL RENT IS DUE ON SIGNING FOR THE PROPERTY pets with permission .

Media

Map

Below is a map showing this property's location. You can find more information about this property in the 'Overview' tab. Skip past the map

Map references should be used as a guide only and do not indicate the precise location of the property
Contains Ordnance Survey data © Crown copyright and database right 2015.